Beschrijving
Vraagprijs: € 800.000,- k.k.
Uniek wonen aan de ’s-Gravenzandseweg, een zeer gewilde en groene woonwijk nabij strand en bos ligt deze statige twee-onder-een-kapwoning op maar liefst 498 m² eigen grond. De woning heeft nog de gave glas-in-loodaccenten en ornamenten, een zeer ruime hal met vide en een doorzonwoonkamer met een speciaal ontworpen serre-aanbouw met toegang naar de zonnig gelegen achtertuin op het zuiden.
Daarnaast heeft de woning een aanpandige garage met directe toegang tot het huis en op de eigen oprit is er ruimte voor 2 tot 3 auto’s.
Indeling:
Garage/bijkeuken: binnendoor bereikbaar (opstelplaats CV-ketel).
Begane grond: entree, ruime hal met meterkast en opbergkast, zwevend toilet met een fonteintje, ruime en lichte doorzonwoonkamer met hoge plafonds en deels vloerwarming, keuken met enkele inbouwapparaten, serre-aanbouw en een schuifpui naar de ruime achtertuin op het zuiden.
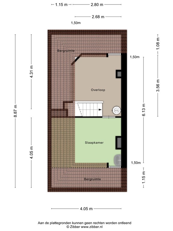
1e verdieping: overloop, 3 ruime slaapkamers waarvan 2 beide toegang naar de badkamer met vloerwarming, inloopdouche, wastafelmeubel en zwevend 2e toilet.
2e verdieping: overloop met een dakkapel, opstelplaats boiler en een 4e slaapkamer met een kleine dakkapel.
Bijzonderheden
Enkele kenmerken:
Kadastrale aanduiding : Hoek van Holland sectie B nummer 1573
Grootte perceel: : 498 m²
Juridische status : Eigen grond
Bouwjaar : Ca. 1928
Aantal kamers : 5 kamers (incl. woonkamer)
Parkeren : Garage en 2/3 plekken op eigen oprit
NEN 2580 maatvoering :
Gebruiksoppervlakte wonen 170 m²
Interne bergruimte 22 m²
Gebouw gebonden buitenruimte 5 m²
Externe bergruimte 5 m²
Inhoud van de woning excl. berging 679 m³
Gasverbruik 1.695 m³
Elektraverbruik 3.895 kWh
Dit is een indicatie volgens huidige bewoning
Energielabel volgt z.s.m.
CV ketel : Vaillant 2016
Onderhoud binnen : Voldoende
Onderhoud buiten : Redelijk
Oplevering : In overleg
Bijzonderheden : Unieke twee-onder-een-kapwoning met eigen grond, glas-in-loodaccenten, aanbouw, tuin op het zuiden met tuinverlichting zowel voor als achter, 4/5 slaapkamers, zon, zee en bos op loopafstand. Hier creëer je een monument voor de toekomst!
Plattegronden
183929950_1634408_s_gr_eerste_verdiepi_first_design_20260331_f99f31.jpg
183929950_1634408_s_gr_tweede_verdiepi_first_design_20260331_e352e5.jpg
183929950_1634408_s_gr_begane_grond_first_design_20260331_d21e7b.jpg
183929950_1634408_s_gr_berging_first_design_20260331_1b73b6.jpg
183929950_1634408_s_gr_begane_grond_tu_first_design_20260331_f3fb50.jpg