Beschrijving
Richtprijs: € 450.000,- k.k.
Gelegen in een kindvriendelijke omgeving, een instap klare 5 kamer hoekwoning op 106 m² eigen grond, een ruime woonkamer met een loopdeur naar de zonnig gelegen tuin op het westen met zonwering, vrijstaande houten berging en achterom. De toegang naar de 1e verdieping is afgesloten middels een moderne glazen deur, 3 ruime slaapkamers met rolluiken en een ruime badkamer. De 2e verdieping heeft een ruime 4e slaapkamer met een dakraam en een afgesloten wasruimte. Tevens zijn er 8 zonnepanelen aanwezig.
Indeling:
Begane grond: entree, hal met meterkast, toilet met een fonteintje, trapkast, brede en lichte woonkamer met loopdeur naar de achtertuin (W), met zonwering, vrijstaande houten berging en achterom. Moderne open keuken met diverse inbouwapparatuur.
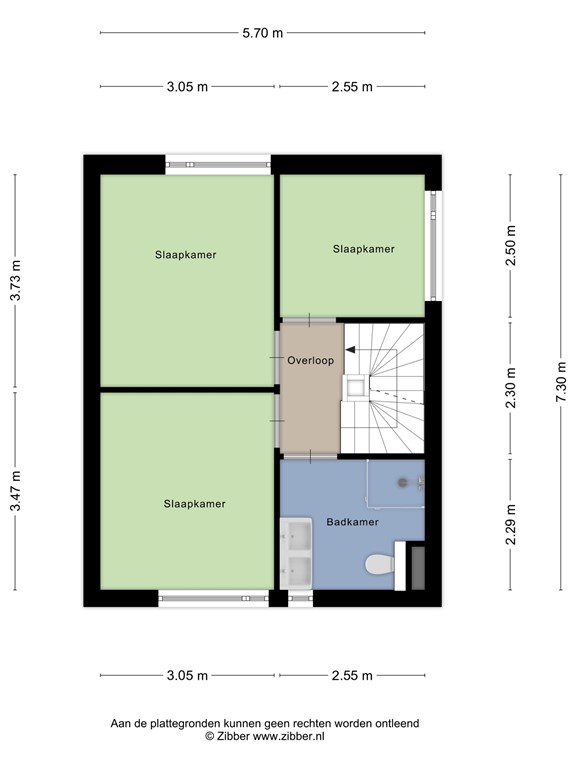
1e verdieping: overloop, 3 ruime slaapkamers, ruime badkamer met een inloopdouche, dubbel wastafelmeubel en 2e toilet.
2e verdieping: overloop met een dakraam, wasruimte met opstelplaats wasmachine/droger, CV-ketel en mechanische ventilatiebox, 4e ruime slaapkamer met een dakraam en bergruimte in de knieschotten.
De woning is volledig geïsoleerd, houten kozijnen met HR++ beglazing.
Bijzonderheden
Enkele kenmerken:
Kadastrale aanduiding : Hoek van Holland sectie B nummer 5199
Grootte perceel: : 106 m²
Juridische status : Eigen grond
Bouwjaar : Ca. 2012
Aantal kamers : 5 kamers (incl. woonkamer)
Parkeren : Voldoende in omgeving
NEN 2580 maatvoering :
Gebruiksoppervlakte wonen 105 m²
Interne bergruimte 0 m²
Gebouw gebonden buitenruimte 0 m²
Externe bergruimte 5 m²
Inhoud van de woning excl. berging 373 m³
Gasverbruik 978 m³
Elektraverbruik 1519 kWh
Opwek zonnepanelen 2046 kWh
Gesaldeerd verbruik per jaar -527 kWh
Dit is een indicatie volgens huidige bewoning
CV ketel : Intergas 2011
Onderhoud binnen : Goed
Onderhoud buiten : Goed
Oplevering : In overleg, voorkeur gaat uit naar medio april 2026
Bijzonderheden : Instapklaar, eigen grond, rolluiken op de eerste verdieping en voorzien van 8 zonnepanelen.
Plattegronden
180221914_1594343_colum_begane_grond_first_design_20251209_5f7001.jpg
180221914_1594343_colum_eerste_verdiepi_first_design_20251209_3b12ea.jpg
180221914_1594343_colum_tweede_verdiepi_first_design_20251209_845380.jpg
180221914_1594343_colum_begane_grond_tu_first_design_20251209_118eae.jpg
180221914_1594343_colum_berging_first_design_20251209_2b8b0b.jpg