Beschrijving
Richtprijs: € 500.000,- k.k.
WONING MET GARAGE Gelegen nabij het centrum bij Hoek van Holland, een instapklare eengezinswoning op 194 m² eigen grond met een uitbouw, een lichte doorzonwoonkamer met een schuifpui en een loopdeur naar de tuin met achterom. De 1e verdieping heeft 2 ruime slaapkamers (voorheen 3) en een moderne badkamer. De 2e verdieping heeft een ruime overloop en biedt toegang naar de 4e slaapkamer met een dakraam en dakkapel. Tevens zijn er 12 zonnepanelen.
Voor parkeergelegenheid beschikt de woning over een eigen garage van circa 24 m² aan de achterzijde van de woning, tevens is de afspraak met buren om voor eigen garage te parkeren.
Indeling:
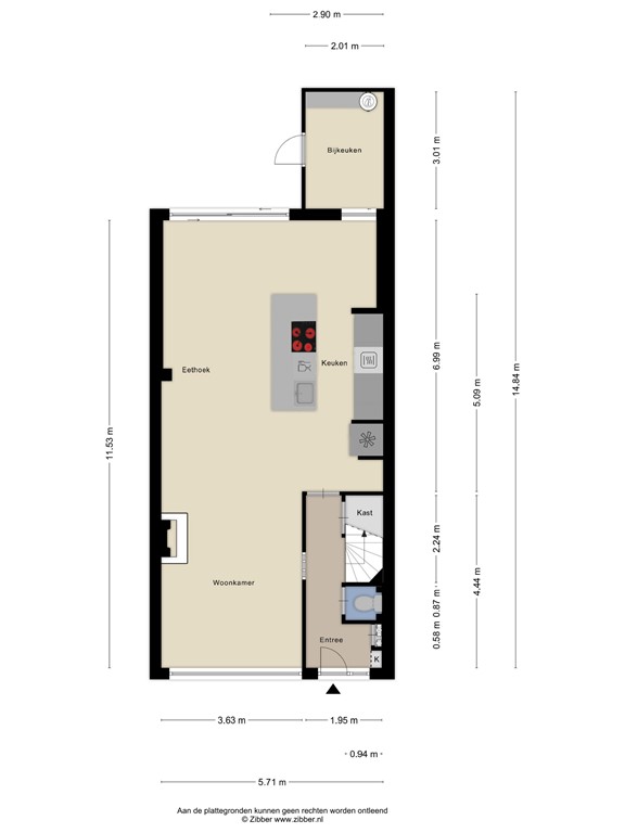
Begane grond: entree, hal met meterkast, trapkast, toilet, lichte doorzonwoonkamer met een haard, open keuken met een kookeiland, diverse inbouwapparatuur, schuifpui naar de keurig verzorgde achtertuin (O), bijkeuken met opstelplaats boiler en een loopdeur naar de tuin met achterom.
1e verdieping: overloop, 2 ruime slaapkamers (voorheen 3) waarvan één een inloopkasten kamer en beide een vaste kast, moderne badkamer met een inloopdouche, wastafelmeubel en 2e toilet.
2e verdieping: overloop met opstelplaats CV-ketel en wasmachine/droger. Een ruime 4e slaapkamer met een dakraam, dakkapel en bergruimte in de knieschotten.
De woning is voorzien van houten en kunststof kozijnen met gedeeltelijk dubbel en HR++ glas.
Bijzonderheden
Enkele kenmerken:
Kadastrale aanduiding : Hoek van Holland sectie B nummer 2460 (woning) + sectie B nummer 2482 (garage) + sectie B nummer 2485 (erf-oprit, mandelig perceel)
Grootte perceel: : 170 m² + 24 m² + 1/6e aandeel van 330 m² = 249m²
Juridische status : Eigen grond
Bouwjaar : Ca. 1959
Aantal kamers : 4 kamers (incl. woonkamer)
Parkeren : Eigen garage én plek voor de garage
NEN 2580 maatvoering :
Gebruiksoppervlakte wonen 134 m²
Interne bergruimte 0 m²
Gebouw gebonden buitenruimte 0 m²
Externe bergruimte 22 m²
Inhoud van de woning excl. berging 475 m³
Gasverbruik 1540 m³
Elektraverbruik 2830 kWh
Opwek zonnepanelen 3598 kWh
Gesaldeerd verbruik per jaar -768 kWh
Dit is een indicatie volgens huidige bewoning
CV ketel : Remeha Avanta 35C 2009
Onderhoud binnen : Goed
Onderhoud buiten : Goed
Oplevering : In overleg, voorkeur gaat uit naar begin juni 2026
Bijzonderheden : Gelegen nabij het centrum, uitbouw, 12 zonnepanelen, eigen garage, dichtbij openbaar vervoer, totaal 249m2 eigen grond.
Plattegronden
180352813_1599050_de_co_begane_grond_first_design_20251215_4cb7d0.jpg
180352813_1599050_de_co_eerste_verdiepi_first_design_20260112_e9bb51.jpg
180352813_1599050_de_co_tweede_verdiepi_first_design_20251215_90ea3f.jpg
180352813_1599050_de_co_begane_grond_tu_first_design_20251215_58a387.jpg
180352813_1599050_de_co_berging_first_design_20251215_fa9f24.jpg