Algemeen
Richtprijs: € 550.000,- k.k.
Gelegen in een kindvriendelijke buurt, op loopafstand van het bos en het strand, een instapklare eengezinswoning op 182 m² eigen grond, voorzien van een ruime woonkamer met een uitbouw en een schuifpui/loopdeur naar zonnig gelegen achtertuin, met een heerlijk ochtend-, middag- en avondzonnetje, vrijstaande stenen berging en achterom. Tevens is er aan de voorzijd... Meer informatie
Gelegen in een kindvriendelijke buurt, op loopafstand van het bos en het strand, een instapklare eengezinswoning op 182 m² eigen grond, voorzien van een ruime woonkamer met een uitbouw en een schuifpui/loopdeur naar zonnig gelegen achtertuin, met een heerlijk ochtend-, middag- en avondzonnetje, vrijstaande stenen berging en achterom. Tevens is er aan de voorzijd... Meer informatie
-
Kenmerken
Alle kenmerken Type object Woonhuis, eengezinswoning, tussenwoning Bouwperiode 1984 Status Verkocht onder voorbehoud Aangeboden sinds Donderdag 30 oktober 2025 -
Locatie
Kenmerken
| Overdracht | |
|---|---|
| Referentienummer | 06498 |
| Vraagprijs | € 550.000,- k.k. |
| Status | Verkocht onder voorbehoud |
| Aanvaarding | In overleg |
| Aangeboden sinds | Donderdag 30 oktober 2025 |
| Laatste wijziging | Woensdag 19 november 2025 |
| Bouw | |
|---|---|
| Type object | Woonhuis, eengezinswoning, tussenwoning |
| Soort bouw | Bestaande bouw |
| Bouwperiode | 1984 |
| Dakbedekking | Dakpannen |
| Type dak | Zadeldak |
| Isolatievormen | Dubbel glas, HR-glas, Volledig geïsoleerd |
| Oppervlaktes en inhoud | |
|---|---|
| Perceeloppervlakte | 182 m² |
| Woonoppervlakte | 125 m² |
| Inhoud | 458 m³ |
| Oppervlakte overige inpandige ruimten | 5 m² |
| Oppervlakte externe bergruimte | 5 m² |
| Oppervlakte gebouwgebonden buitenruimte | 12 m² |
| Indeling | |
|---|---|
| Aantal bouwlagen | 4 |
| Aantal kamers | 5 (waarvan 4 slaapkamers) |
| Aantal badkamers | 1 (en 1 apart toilet) |
| Locatie | |
|---|---|
| Ligging | Dichtbij openbaar vervoer, In bosrijke omgeving, In woonwijk |
| Tuin | |
|---|---|
| Type | Achtertuin |
| Oriëntering | Noorden |
| Heeft een achterom | Ja |
| Staat | Goed onderhouden |
| Energieverbruik | |
|---|---|
| Energielabel | B |
| CV ketel | |
|---|---|
| CV ketel | Vaillant hrSOLIDE |
| Warmtebron | Gas |
| Bouwjaar | 2009 |
| Eigendom | Eigendom |
| Uitrusting | |
|---|---|
| Warm water | CV-ketel |
| Verwarmingssysteem | Centrale verwarming |
| Ventilatie methode | Mechanische ventilatie |
| Keukenvoorzieningen | Inbouwapparatuur |
| Badkamervoorzieningen | Dubbele wastafel, Inloopdouche, Toilet, Wastafelmeubel |
| Tuin aanwezig | Ja |
| Heeft schuur/berging | Ja |
| Heeft een schuifpui | Ja |
| Heeft ventilatie | Ja |
| Kadastrale gegevens | |
|---|---|
| Kadastrale aanduiding | Hoek van Holland B 3612 |
| Perceeloppervlakte | 182 m² |
| Omvang | Geheel perceel |
| Eigendomsituatie | Eigen grond |
Beschrijving
Richtprijs: € 550.000,- k.k.
Gelegen in een kindvriendelijke buurt, op loopafstand van het bos en het strand, een instapklare eengezinswoning op 182 m² eigen grond, voorzien van een ruime woonkamer met een uitbouw en een schuifpui/loopdeur naar zonnig gelegen achtertuin, met een heerlijk ochtend-, middag- en avondzonnetje, vrijstaande stenen berging en achterom. Tevens is er aan de voorzijde een inpandige berging. De 1e verdieping heeft 3 ruime slaapkamers, een luxe badkamer en een dakterras. De 2e verdieping heeft een ruime 4e slaapkamer met aan de voorzijde een dakkapel verdeeld over 2 kamers.
Indeling:
Begane grond: entree, hal met meterkast, toilet met een fonteintje, trapkast, ruime woonkamer, moderne keuken met diverse inbouwapparaten en een schuifpui/ loopdeur naar de diepe achtertuin (N) met vrijstaande stenen berging en achterom. Tevens is er aan de voorzijde een inpandige berging.
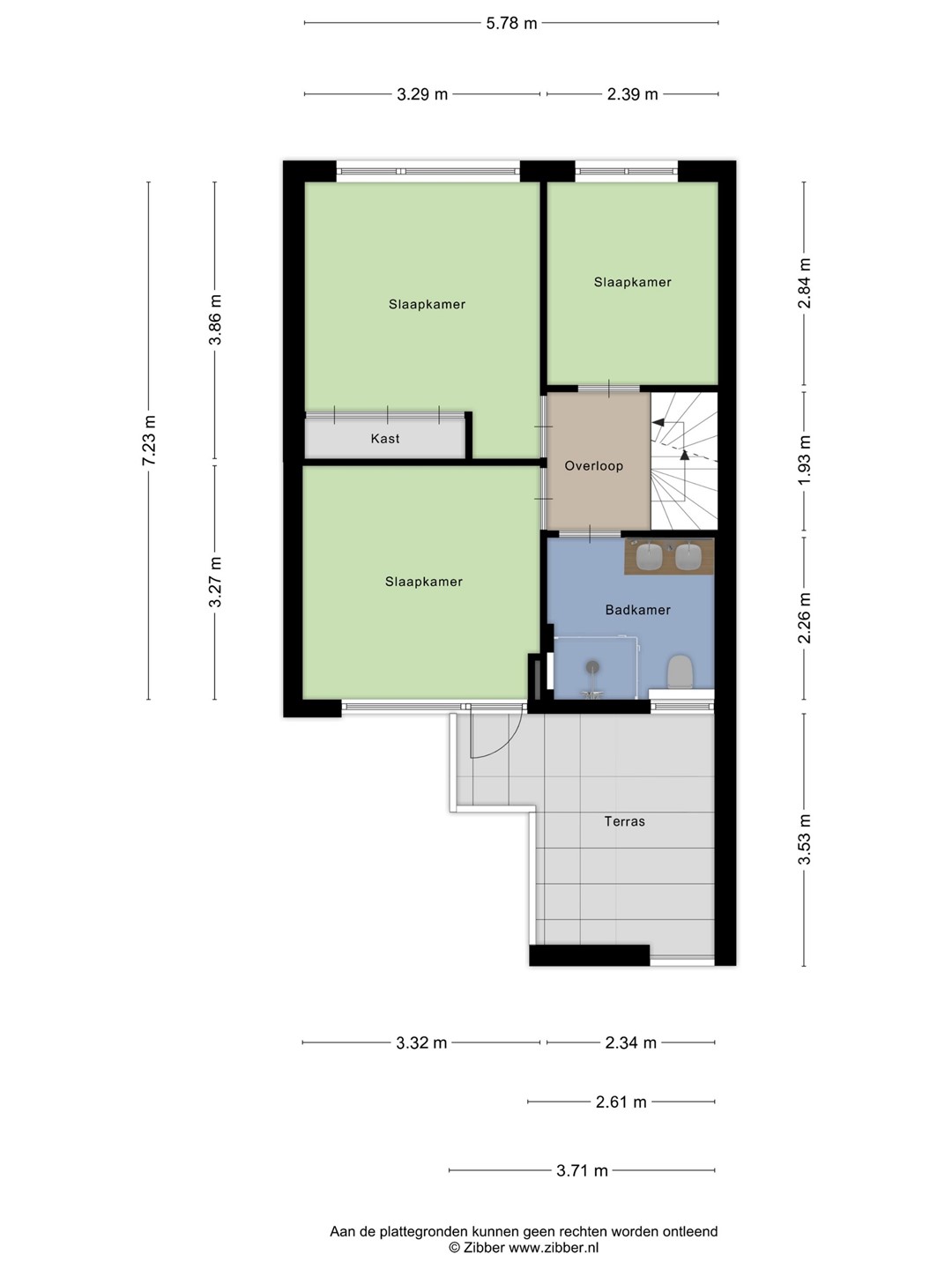
1e verdieping: ruime overloop, 3 ruime slaapkamers waarvan één met een vaste kast en één toegang naar het zonnig gelegen dakterras op het zuiden, luxe badkamer met een inloopdouche, dubbel wastafelmeubel en 2e toilet.
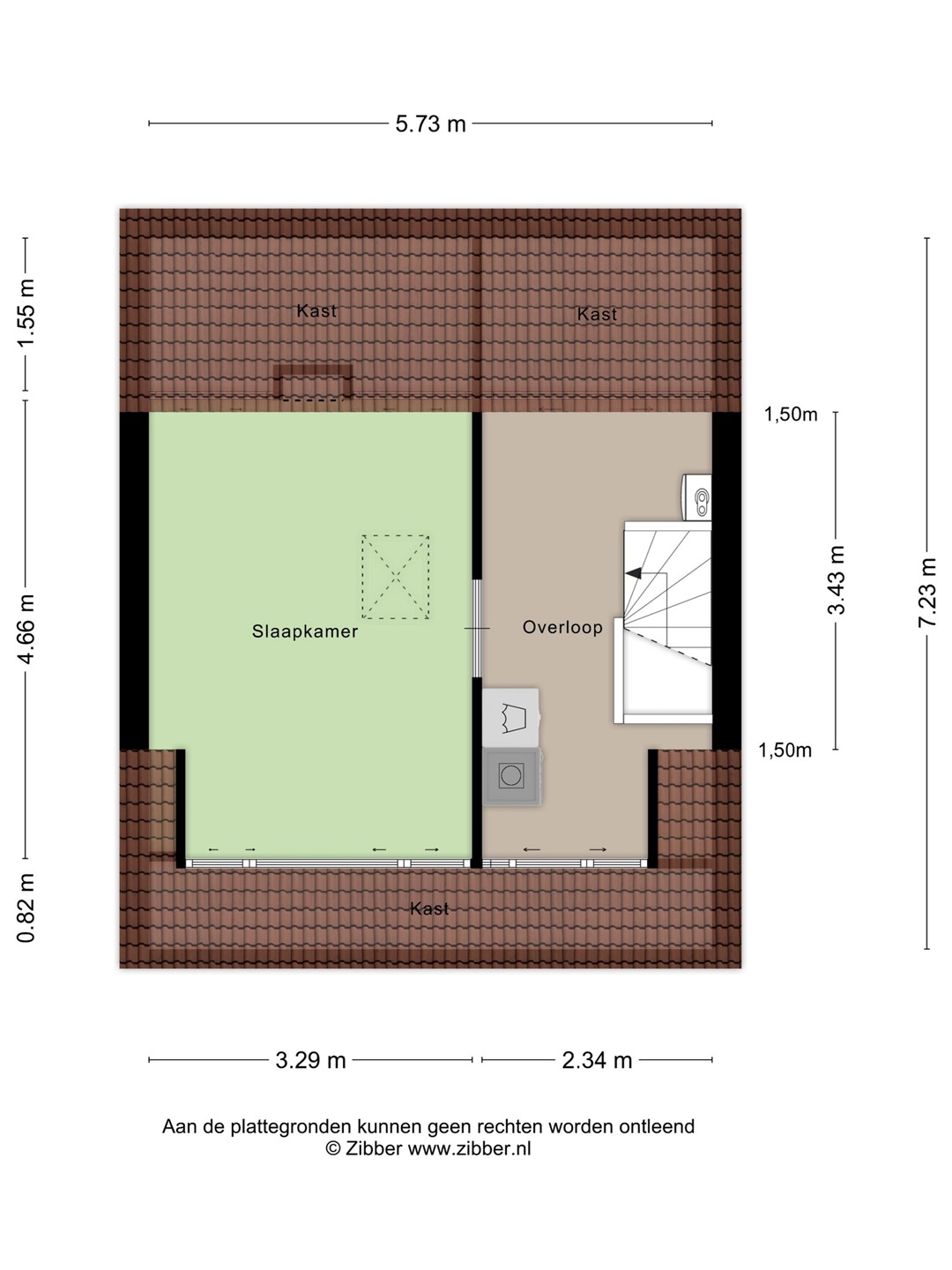
2e verdieping: ruime overloop met opstelplaats wasmachine/droger en CV-ketel, ruime slaapkamer met aan de voorzijde een dakkapel verdeeld over 2 kamers.
Vliering: extra bergruimte op de vliering.
De woning is volledig geïsoleerd, voorzien van houten en aluminium kozijnen met dubbel en deels HR++ glas.
Gelegen in een kindvriendelijke buurt, op loopafstand van het bos en het strand, een instapklare eengezinswoning op 182 m² eigen grond, voorzien van een ruime woonkamer met een uitbouw en een schuifpui/loopdeur naar zonnig gelegen achtertuin, met een heerlijk ochtend-, middag- en avondzonnetje, vrijstaande stenen berging en achterom. Tevens is er aan de voorzijde een inpandige berging. De 1e verdieping heeft 3 ruime slaapkamers, een luxe badkamer en een dakterras. De 2e verdieping heeft een ruime 4e slaapkamer met aan de voorzijde een dakkapel verdeeld over 2 kamers.
Indeling:
Begane grond: entree, hal met meterkast, toilet met een fonteintje, trapkast, ruime woonkamer, moderne keuken met diverse inbouwapparaten en een schuifpui/ loopdeur naar de diepe achtertuin (N) met vrijstaande stenen berging en achterom. Tevens is er aan de voorzijde een inpandige berging.
1e verdieping: ruime overloop, 3 ruime slaapkamers waarvan één met een vaste kast en één toegang naar het zonnig gelegen dakterras op het zuiden, luxe badkamer met een inloopdouche, dubbel wastafelmeubel en 2e toilet.
2e verdieping: ruime overloop met opstelplaats wasmachine/droger en CV-ketel, ruime slaapkamer met aan de voorzijde een dakkapel verdeeld over 2 kamers.
Vliering: extra bergruimte op de vliering.
De woning is volledig geïsoleerd, voorzien van houten en aluminium kozijnen met dubbel en deels HR++ glas.
Bijzonderheden
Enkele kenmerken:
Kadastrale aanduiding : Hoek van Holland sectie B nummer 3612
Grootte perceel: : 182 m²
Juridische status : Eigen grond
Bouwjaar : Ca. 1984
Aantal kamers : 5 kamers (incl. woonkamer)
Parkeren : Voldoende in omgeving
NEN 2580 maatvoering :
Gebruiksoppervlakte wonen 125 m²
Interne bergruimte 5 m²
Gebouw gebonden buitenruimte 12 m²
Externe bergruimte 5 m²
Inhoud van de woning excl. berging 458 m³
Gasverbruik 777 m³
Elektraverbruik 3081 kWh
Dit is een indicatie volgens huidige bewoning
CV ketel : Vaillant Solide 2009
Onderhoud binnen : Goed
Onderhoud buiten : Goed
Oplevering : In overleg, voorkeur gaat uit naar maart 2026
Bijzonderheden : Instapklare eengezinswoning, in 2024 aan de buitenzijde geschilderd, gelegen in een prachtige bosrijke omgeving op loopafstand van het strand, duinen en de zee.
Kadastrale aanduiding : Hoek van Holland sectie B nummer 3612
Grootte perceel: : 182 m²
Juridische status : Eigen grond
Bouwjaar : Ca. 1984
Aantal kamers : 5 kamers (incl. woonkamer)
Parkeren : Voldoende in omgeving
NEN 2580 maatvoering :
Gebruiksoppervlakte wonen 125 m²
Interne bergruimte 5 m²
Gebouw gebonden buitenruimte 12 m²
Externe bergruimte 5 m²
Inhoud van de woning excl. berging 458 m³
Gasverbruik 777 m³
Elektraverbruik 3081 kWh
Dit is een indicatie volgens huidige bewoning
CV ketel : Vaillant Solide 2009
Onderhoud binnen : Goed
Onderhoud buiten : Goed
Oplevering : In overleg, voorkeur gaat uit naar maart 2026
Bijzonderheden : Instapklare eengezinswoning, in 2024 aan de buitenzijde geschilderd, gelegen in een prachtige bosrijke omgeving op loopafstand van het strand, duinen en de zee.