Beschrijving
Richtprijs: € 450.000,- k.k.
Gelegen in een kindvriendelijke buurt, op loopafstand van de speeltuin, zwembad en scholen, een moderne eengezinswoning, voorzien van een zeer ruime woonkamer met een royale uitbouw en openslaande deuren naar de zonnig gelegen achtertuin op het zuidoosten met elektrische zonnescherm, vrijstaande houten berging en achterom. Tevens is er aan de voorzijde een inpandige berging als bijkeuken met opstelplaats voor wasmachine en droger. De 1e verdieping heeft 3 ruime slaapkamers en een badkamer. De 2e verdieping heeft een ruime 4e slaapkamer met aan beide zijden een dakkapel.
Indeling:
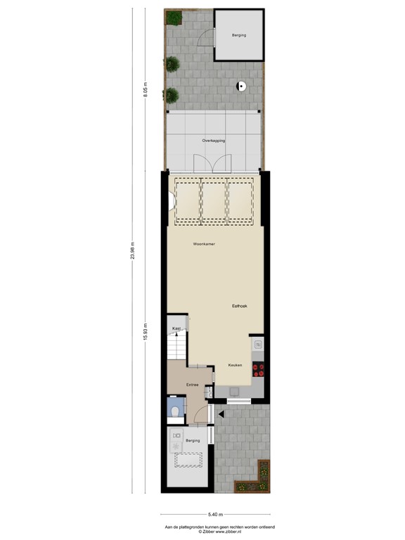
Begane grond: entree, hal met meterkast, toilet, trapkast, ruime en lichte woonkamer met een royale uitbouw met serredak, L-vormige keuken met diverse inbouwapparaten, openslaande deuren naar de zonnig gelegen achtertuin (Z/O) met elektrische zonwering, vrijstaande houten berging en achterom. Tevens is er aan de voorzijde een aangebouwde stenen berging.
1e verdieping: ruime overloop, 3 ruime slaapkamers waarvan één met een vaste kast, moderne badkamer met een inloopdouche, dubbel wastafelmeubel en 2e toilet.
2e verdieping: ruime slaapkamer met aan beide zijden een dakkapel en voorzien van vaste kasten en bergruimte in de knieschotten.
De woning is volledig geïsoleerd, voorzien van houten en kunststofkozijnen met dubbel glas en slaapkamers voorzien van rolluiken.
Bijzonderheden
Enkele kenmerken:
Kadastrale aanduiding : Hoek van Holland sectie B nummer 3691
Grootte perceel : 122 m²
Juridische status : Erfpacht t/m 31-03-2085
Canon afgekocht t/m 17 februari 2036
Bouwjaar : Ca. 1986
Aantal kamers : 5 kamers (incl. woonkamer)
Parkeren : Voldoende in omgeving
NEN 2580 maatvoering :
Gebruiksoppervlakte wonen 125 m²
Interne bergruimte 0 m²
Gebouw gebonden buitenruimte 14 m²
Externe bergruimte 6 m²
Inhoud van de woning excl. berging 442 m³
Gasverbruik 781 m³
Elektraverbruik 3.802 kWh
Dit is een indicatie volgens huidige bewoning
CV ketel : HR-ketel Remeha Avanta 2018
Onderhoud binnen : Goed
Onderhoud buiten : Goed
Oplevering : In overleg, voorkeur gaat uit naar eind januari 2026
Bijzonderheden : Centrum op loopafstand, dichtbij scholen. Voorzien van twee dakkapellen en in 2025 aan de buitenzijde geschilderd.
Plattegronden
178470922_1587783_ortel_begane_grond_first_design_20251024_9dd132.jpg
178470922_1587783_ortel_eerste_verdiepi_first_design_20251024_c89517.jpg
178470922_1587783_ortel_tweede_verdiepi_first_design_20251024_ef4614.jpg
178470922_1587783_ortel_begane_grond_tu_first_design_20251024_17bd29.jpg
178470922_1587783_ortel_berging_first_design_20251024_ddaf6f.jpg