Beschrijving
Richtprijs: € 525.000,- k.k.
Gelegen op 10 minuten fietsafstand van het strand en nabij het centrum, een keurig onderhouden 5-kamer eengezinswoning op 185 m² eigen grond, een ruime woonkamer met een uitbouw, royale serre en verwarming door middel van een houtkachel, glazenschuifdeur naar de zonnig gelegen achtertuin op het zuiden met overkapping, houten berging met omvormer zonnepanelen en achterom. De 1e verdieping heeft 1 ruime slaapkamer, een wasruimte en een ruime luxe ingerichte badkamer. De 2e verdieping heeft een 2e slaapkamer met aan beiden zijden een dakkapel en een 2e badkamer. Tevens zijn er 13 zonnepanelen.
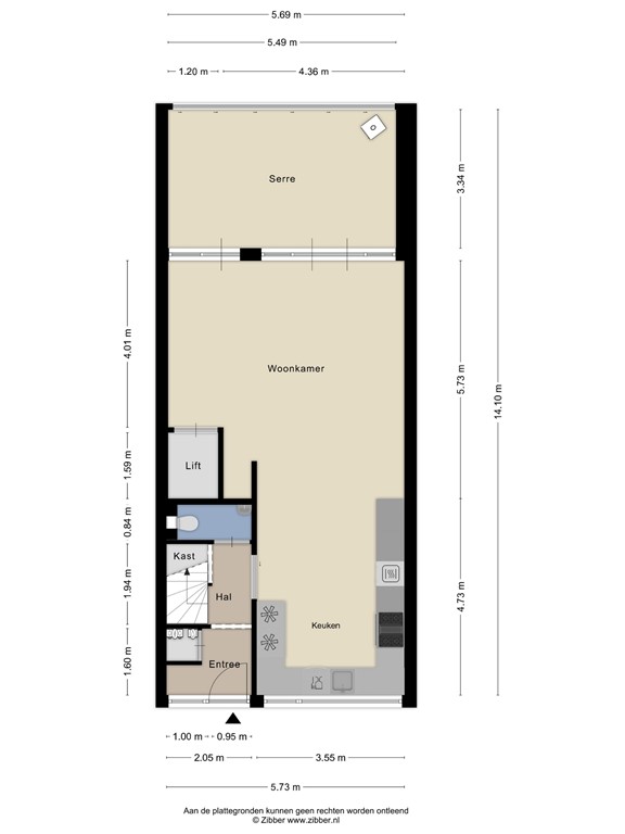
Indeling:
Begane grond: entree, hal met meterkast en trapkast, toilet met een fonteintje, ruime woonkamer met een lift, moderne open keuken met diverse inbouwapparaten en een loopdeur/openslaande deuren naar de serre verwarmd d.m.v. een houtkachel en een zonnig gelegen achtertuin (Z) met een houten berging, overkapping en achterom.
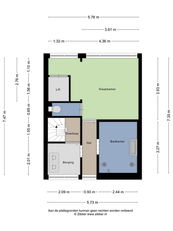
1e verdieping: ruime overloop, kamer met opstelplaats wasmachine/droger, speciaal ingerichte computerhoek, 1 ruime slaapkamer (voorheen 2), royaal toilet en de huislift, zeer ruime en luxe badkamer met een inloopdouche, zithoek met een douche en een wastafelmeubel.
2e verdieping: ruime overloop met een schuifdeur naar de 2e slaapkamer met een airco, schuifdeur naar de badkamer met een inloopdouche, toilet, wastafel en opstelplaats boiler, en aan beiden zijden een dakkapel (mogelijkheid 2 slaapkamers te realiseren).
De woning is volledig geïsoleerd, voorzien van houten kozijnen met dubbel en HR++ glas.
Bijzonderheden
Enkele kenmerken:
Kadastrale aanduiding : Hoek van Holland sectie B nummer 2580
Grootte perceel: : 185 m²
Juridische status : Eigen grond
Bouwjaar : Ca. 1961
Aantal kamers : 5 kamers (incl. woonkamer)
Parkeren : Voldoende in omgeving
NEN 2580 maatvoering :
Gebruiksoppervlakte wonen 132 m²
Interne bergruimte 0 m²
Gebouw gebonden buitenruimte 18 m²
Externe bergruimte 19 m²
Inhoud van de woning excl. berging 466 m³
Gasverbruik 262 m³
Elektraverbruik 2.494 kWh
Opwek 13 zonnepanelen 2.618 kWh
Gesaldeerd verbruik per jaar -124 kWh
Dit is een indicatie volgens huidige bewoning
CV ketel : Remeha Avanta HR 2019
Onderhoud binnen : Goed
Onderhoud buiten : Goed
Oplevering : In overleg, voorkeur gaat uit naar eind mei 2026
Bijzonderheden : Eigen grond, huislift, uitbouw, 13 zonnepanelen en buitenzijde in 2025 geschilderd. Zee, duinen en strand liggen op circa 10 minuten fietsafstand, en het centrum en de metro op 5 minuten fietsen.
Plattegronden
182156527_1624572_rijps_begane_grond_first_design_20260213_c9f590.jpg
182156527_1624572_rijps_eerste_verdiepi_first_design_20260213_387642.jpg
182156527_1624572_rijps_tweede_verdiepi_first_design_20260213_36e7d9.jpg
182156527_1624572_rijps_begane_grond__t_first_design_20260213_4754e3.jpg
182156527_1624572_rijps_berging_first_design_20260213_66a6ea.jpg