Beschrijving
Richtprijs: € 475.000,- k.k.
Gelegen in een kindvriendelijke wijk met speeltuinen, scholen en een zwembad in de buurt, een keurig onderhouden 5-kamer split-level eengezinswoning op 121 m² eigen grond. De woning heeft een ruime, uitgebouwde woonkamer en een moderne keuken met toegang tot het balkon. De zonnig gelegen achtertuin op het zuidwesten heeft een berging en achterom. De 2e verdieping telt drie slaapkamers, waarvan één met een vide, en een nieuwe badkamer De 3e verdieping heeft een 4e slaapkamer met dakkapel. Tevens zijn er 13 zonnepanelen aanwezig.
Indeling:
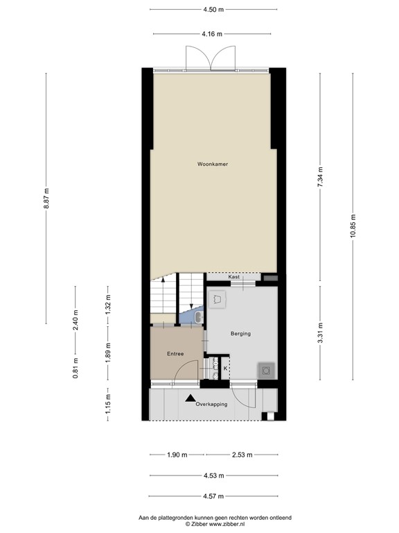
Begane grond: entree, hal, toilet met een fonteintje, ruime inpandige berging welke zowel binnendoor als buitenom te bereiken is. Grote kruipruimte/bergruimte (stahoogte ca. 1.70 m).
1e verdieping: ruime woonkamer met openslaande deuren naar de achtertuin (Z/W) met een vrijstaande houten berging en achterom. Gesloten keuken met diverse inbouwapparaten en een loopdeur naar het balkon.
2e verdieping: overloop, 3 ruime slaapkamers met vaste kasten, en één met een vide, moderne badkamer met een inloopdouche, wastafelmeubel en 2e toilet.
3e verdieping: 4e slaapkamer met een dakkapel en een kast met opstelplaats CV-ketel.
Tussen de diverse ruimtes zijn “split-levels” van 6 of 7 traptreden.
De woning is volledig geïsoleerd, voorzien van houten kozijnen met dubbel en HR++ glas.
Bijzonderheden
Enkele kenmerken:
Kadastrale aanduiding : Hoek van Holland sectie B nummer 4280
Grootte perceel: : 121 m²
Juridische status : Eigen grond
Bouwjaar : Ca.1992
Aantal kamers : 5 kamers (incl. woonkamer)
Parkeren : Voldoende in omgeving
NEN 2580 maatvoering :
Gebruiksoppervlakte wonen 123 m²
Interne bergruimte 24 m²
Gebouw gebonden buitenruimte 8 m²
Externe bergruimte 7 m²
Inhoud van de woning excl. berging 519 m³
Gasverbruik 944 m³
Elektraverbruik 4.633 kWh
Opwek zonnepanelen 5.542 kWh
Gesaldeerd verbruik per jaar -909 kWh
Dit is een indicatie volgens huidige bewoning
CV ketel : Remeha Avanta 2006
Onderhoud binnen : Goed
Onderhoud buiten : Goed
Oplevering : In overleg, voorkeur gaat uit naar 2e helft april 2026
Bijzonderheden : Eigen grond, speelse split-level indeling, dakkapel, 13 zonnepanelen en een zonnige tuin op het zuidwesten.
Plattegronden
182269180_1622436_wille_begane_grond_first_design_20260213_b63ff4.jpg
182269180_1622436_wille_eerste_verdiepi_first_design_20260213_5d4cca.jpg
182269180_1622436_wille_tweede_verdiepi_first_design_20260213_32a920.jpg
182269180_1622436_wille_vliering_first_design_20260213_28b18e.jpg
182269180_1622436_wille_begane_grond__t_first_design_20260213_180a2d.jpg
182269180_1622436_wille_berging_first_design_20260213_1c3c38.jpg
182269180_1622436_wille_kelder_first_design_20260213_dc2250.jpg