Algemeen
Richtprijs: € 490.000,- k.k.
Gelegen in een kindvriendelijke en rustige wijk, een moderne en instapklare 4-kamer kwadrantwoning op 119 m² eigen grond. De woning heeft een ruime woonkamer met een luxe open keuken, afgesloten bijkeuken met wasruimte, toegang door middel van een schuifpui en loopdeur naar de zonnige gelegen tuin op het westen met een berging en achterom. De 1e verdieping heeft... Meer informatie
Gelegen in een kindvriendelijke en rustige wijk, een moderne en instapklare 4-kamer kwadrantwoning op 119 m² eigen grond. De woning heeft een ruime woonkamer met een luxe open keuken, afgesloten bijkeuken met wasruimte, toegang door middel van een schuifpui en loopdeur naar de zonnige gelegen tuin op het westen met een berging en achterom. De 1e verdieping heeft... Meer informatie
-
Kenmerken
Alle kenmerken Type object Woonhuis, eengezinswoning, tussenwoning, kwadrantwoning Bouwperiode 1989 Status Verkocht Aangeboden sinds Dinsdag 17 februari 2026 -
Locatie
Kenmerken
| Overdracht | |
|---|---|
| Referentienummer | 06523 |
| Vraagprijs | € 490.000,- k.k. |
| Status | Verkocht |
| Aanvaarding | In overleg |
| Aangeboden sinds | Dinsdag 17 februari 2026 |
| Laatste wijziging | Maandag 23 maart 2026 |
| Bouw | |
|---|---|
| Type object | Woonhuis, eengezinswoning, tussenwoning, kwadrantwoning |
| Soort bouw | Bestaande bouw |
| Bouwperiode | 1989 |
| Dakbedekking | Bitumen, Dakpannen |
| Type dak | Samengesteld |
| Isolatievormen | Dubbel glas, Volledig geïsoleerd |
| Oppervlaktes en inhoud | |
|---|---|
| Perceeloppervlakte | 119 m² |
| Woonoppervlakte | 106 m² |
| Inhoud | 423 m³ |
| Oppervlakte overige inpandige ruimten | 13 m² |
| Oppervlakte gebouwgebonden buitenruimte | 18 m² |
| Indeling | |
|---|---|
| Aantal bouwlagen | 3 |
| Aantal kamers | 4 (waarvan 3 slaapkamers) |
| Aantal badkamers | 1 (en 2 aparte toiletten) |
| Locatie | |
|---|---|
| Ligging | Dichtbij openbaar vervoer, In bosrijke omgeving, In woonwijk, Nabij school |
| Tuin | |
|---|---|
| Type | Achtertuin |
| Oriëntering | West |
| Heeft een achterom | Ja |
| Staat | Goed onderhouden |
| Energieverbruik | |
|---|---|
| Energielabel | A |
| CV ketel | |
|---|---|
| CV ketel | Remeha Avanta 35c |
| Warmtebron | Gas |
| Bouwjaar | 2015 |
| Eigendom | Eigendom |
| Uitrusting | |
|---|---|
| Warm water | CV-ketel |
| Verwarmingssysteem | Centrale verwarming |
| Ventilatie methode | Mechanische ventilatie |
| Keukenvoorzieningen | Inbouwapparatuur |
| Badkamervoorzieningen | Inloopdouche, Ligbad, Wastafelmeubel |
| Tuin aanwezig | Ja |
| Heeft schuur/berging | Ja |
| Heeft zonnepanelen | Ja |
| Heeft ventilatie | Ja |
| Kadastrale gegevens | |
|---|---|
| Kadastrale aanduiding | Hoek van Holland B 3951 |
| Perceeloppervlakte | 119 m² |
| Omvang | Geheel perceel |
| Eigendomsituatie | Eigen grond |
Beschrijving
Richtprijs: € 490.000,- k.k.
Gelegen in een kindvriendelijke en rustige wijk, een moderne en instapklare 4-kamer kwadrantwoning op 119 m² eigen grond. De woning heeft een ruime woonkamer met een luxe open keuken, afgesloten bijkeuken met wasruimte, toegang door middel van een schuifpui en loopdeur naar de zonnige gelegen tuin op het westen met een berging en achterom. De 1e verdieping heeft 3 ruime slaapkamers waarvan één toegang naar een zonnig en royaal dakterras op het zuidwesten, 2e toilet en een luxe badkamer (2023). Tevens is de woning voorzien van 9 zonnepanelen.
Indeling:
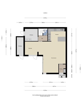
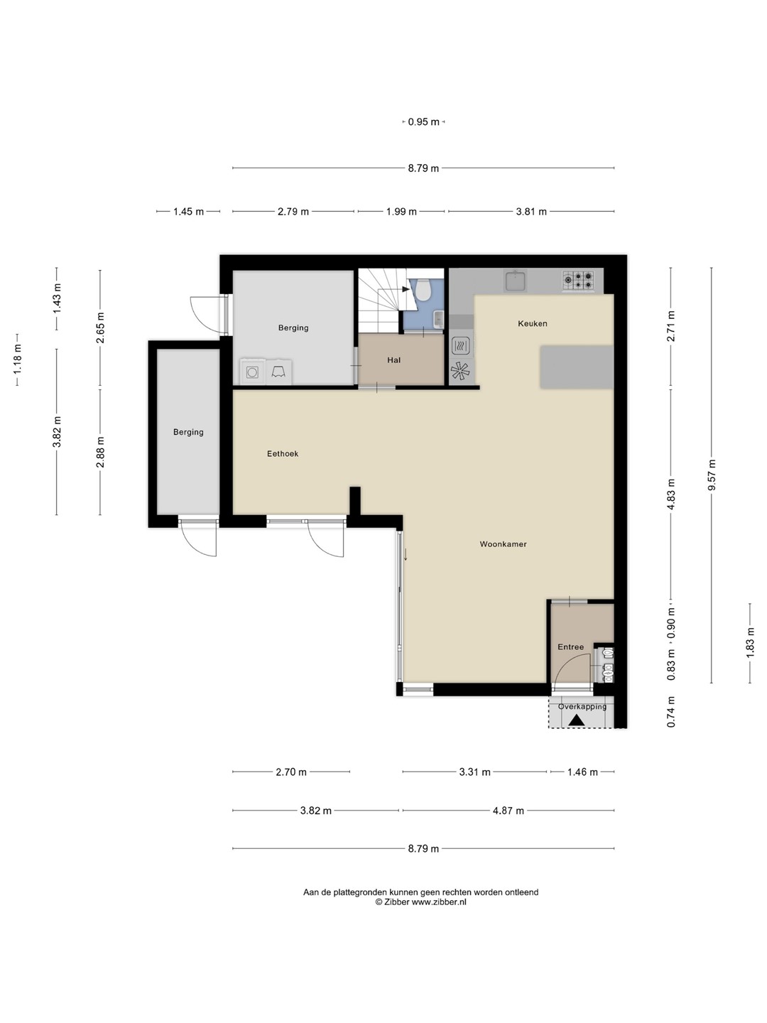
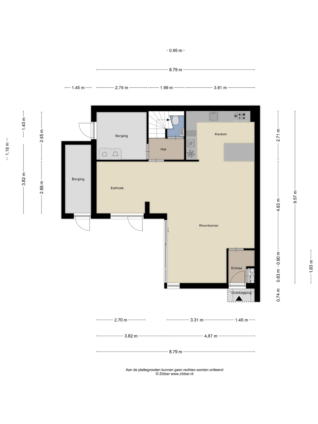
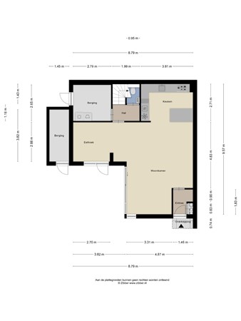
Begane grond: entree, hal met meterkast, ruime woonkamer met vloerverwarming (bijverwarming), luxe open keuken met een schiereiland en diverse inbouwapparaten, via een loopdeur en schuifpui toegang tot de achtertuin (W) met een aanpandige stenen berging en achterom. Toilet met een fonteintje, toegang via de hal naar de inpandige bijkeuken met wasruimte en naar de 1e verdieping.
1e verdieping: ruime overloop, 3 ruime slaapkamers waarvan één met een bergvliering en opstelplaats CV-ketel, en een ruim en zonnig gelegen dakterras (Z/W), luxe badkamer (2023) met een inloopdouche, ligbad en wastafelmeubel.
Bergvliering: opstelplaats CV-ketel en bergruimte.
De woning is volledig geïsoleerd, voorzien van houten kozijnen met dubbel glas.
Gelegen in een kindvriendelijke en rustige wijk, een moderne en instapklare 4-kamer kwadrantwoning op 119 m² eigen grond. De woning heeft een ruime woonkamer met een luxe open keuken, afgesloten bijkeuken met wasruimte, toegang door middel van een schuifpui en loopdeur naar de zonnige gelegen tuin op het westen met een berging en achterom. De 1e verdieping heeft 3 ruime slaapkamers waarvan één toegang naar een zonnig en royaal dakterras op het zuidwesten, 2e toilet en een luxe badkamer (2023). Tevens is de woning voorzien van 9 zonnepanelen.
Indeling:
Begane grond: entree, hal met meterkast, ruime woonkamer met vloerverwarming (bijverwarming), luxe open keuken met een schiereiland en diverse inbouwapparaten, via een loopdeur en schuifpui toegang tot de achtertuin (W) met een aanpandige stenen berging en achterom. Toilet met een fonteintje, toegang via de hal naar de inpandige bijkeuken met wasruimte en naar de 1e verdieping.
1e verdieping: ruime overloop, 3 ruime slaapkamers waarvan één met een bergvliering en opstelplaats CV-ketel, en een ruim en zonnig gelegen dakterras (Z/W), luxe badkamer (2023) met een inloopdouche, ligbad en wastafelmeubel.
Bergvliering: opstelplaats CV-ketel en bergruimte.
De woning is volledig geïsoleerd, voorzien van houten kozijnen met dubbel glas.
Bijzonderheden
Enkele kenmerken:
Kadastrale aanduiding : Hoek van Holland sectie B nummer 3951
Grootte perceel: : 119 m²
Juridische status : Eigen grond
Bouwjaar : Ca. 1989
Aantal kamers : 4 kamers (incl. woonkamer)
Parkeren : Voldoende in omgeving
NEN 2580 maatvoering :
Gebruiksoppervlakte wonen 106 m²
Interne bergruimte 13 m²
Gebouw gebonden buitenruimte 18 m²
Externe bergruimte 0 m²
Inhoud van de woning excl. berging 423 m³
Gasverbruik 1.505 m³
Elektraverbruik (exclusief teruglevering 9 zonnepanelen, installatiejaar 2026) 4.106 kWh
Opwek zonnepanelen nog niet bekend, recent geplaatst
Dit is een indicatie volgens huidige bewoning
CV ketel : Remeha Avanta 35c 2015
Onderhoud binnen : Goed
Onderhoud buiten : Goed
Oplevering : In overleg, voorkeur gaat uit naar 1 juni 2026
Bijzonderheden : Instapklaar, op eigen grond, vloerverwarming (als bijverwarming), plat dak onder het terras vernieuwd in 2018, dakterras op het zuidwesten, tuin op het westen, mogelijkheid tot een tweede dakterras vanuit één slaapkamer, voorzien van 9 zonnepanelen (2026).
Kadastrale aanduiding : Hoek van Holland sectie B nummer 3951
Grootte perceel: : 119 m²
Juridische status : Eigen grond
Bouwjaar : Ca. 1989
Aantal kamers : 4 kamers (incl. woonkamer)
Parkeren : Voldoende in omgeving
NEN 2580 maatvoering :
Gebruiksoppervlakte wonen 106 m²
Interne bergruimte 13 m²
Gebouw gebonden buitenruimte 18 m²
Externe bergruimte 0 m²
Inhoud van de woning excl. berging 423 m³
Gasverbruik 1.505 m³
Elektraverbruik (exclusief teruglevering 9 zonnepanelen, installatiejaar 2026) 4.106 kWh
Opwek zonnepanelen nog niet bekend, recent geplaatst
Dit is een indicatie volgens huidige bewoning
CV ketel : Remeha Avanta 35c 2015
Onderhoud binnen : Goed
Onderhoud buiten : Goed
Oplevering : In overleg, voorkeur gaat uit naar 1 juni 2026
Bijzonderheden : Instapklaar, op eigen grond, vloerverwarming (als bijverwarming), plat dak onder het terras vernieuwd in 2018, dakterras op het zuidwesten, tuin op het westen, mogelijkheid tot een tweede dakterras vanuit één slaapkamer, voorzien van 9 zonnepanelen (2026).