Algemeen
Richtprijs: € 380.000,- k.k.
Gelegen op loopafstand van het centrum van Hoek van Holland, een instapklare 5-kamer maisonnettewoning met een gave glas-met-staal deur naar de doorzonwoonkamer, recente luxe keuken met beide een loopdeur naar een groot en zonnig gelegen dakterras van bijna 50m2 met een vrijstaande houten berging. Tevens is de moderne badkamer aan de overloop op de 1e verdieping... Meer informatie
Gelegen op loopafstand van het centrum van Hoek van Holland, een instapklare 5-kamer maisonnettewoning met een gave glas-met-staal deur naar de doorzonwoonkamer, recente luxe keuken met beide een loopdeur naar een groot en zonnig gelegen dakterras van bijna 50m2 met een vrijstaande houten berging. Tevens is de moderne badkamer aan de overloop op de 1e verdieping... Meer informatie
-
Kenmerken
Alle kenmerken Type object Appartement, maisonnette, dubbelbovenhuis Bouwperiode 1956 Status Verkocht onder voorbehoud Aangeboden sinds Woensdag 18 februari 2026 -
Locatie
Kenmerken
| Overdracht | |
|---|---|
| Referentienummer | 06527 |
| Vraagprijs | € 380.000,- k.k. |
| Status | Verkocht onder voorbehoud |
| Aanvaarding | In overleg |
| Aangeboden sinds | Woensdag 18 februari 2026 |
| Laatste wijziging | Dinsdag 24 maart 2026 |
| Bouw | |
|---|---|
| Type object | Appartement, maisonnette, dubbelbovenhuis |
| Woonlaag | 1e woonlaag |
| Soort bouw | Bestaande bouw |
| Bouwperiode | 1956 |
| Dakbedekking | Bitumen, Dakpannen |
| Type dak | Zadeldak |
| Keurmerken | Energie prestatie advies |
| Isolatievormen | Dakisolatie, Dubbel glas, HR-glas, Spouwmuren |
| Oppervlaktes en inhoud | |
|---|---|
| Woonoppervlakte | 100 m² |
| Inhoud | 329 m³ |
| Oppervlakte externe bergruimte | 2 m² |
| Oppervlakte gebouwgebonden buitenruimte | 56 m² |
| Indeling | |
|---|---|
| Aantal bouwlagen | 2 |
| Aantal kamers | 4 (waarvan 3 slaapkamers) |
| Aantal badkamers | 1 (en 1 apart toilet) |
| Locatie | |
|---|---|
| Ligging | Dichtbij openbaar vervoer, In woonwijk, Nabij school |
| Energieverbruik | |
|---|---|
| Energielabel | D |
| CV ketel | |
|---|---|
| CV ketel | Remeha Avanta HR |
| Warmtebron | Gas |
| Bouwjaar | 2014 |
| Eigendom | Eigendom |
| Uitrusting | |
|---|---|
| Warm water | CV-ketel |
| Verwarmingssysteem | Centrale verwarming |
| Badkamervoorzieningen | Inloopdouche, Wastafelmeubel |
| Heeft schuur/berging | Ja |
| Vereniging van Eigenaren | |
|---|---|
| Ingeschreven bij de KvK | Ja |
| Periodieke bijdrage | Ja |
| Opstal verzekering | Ja |
| Kadastrale gegevens | |
|---|---|
| Kadastrale aanduiding | Hoek van Holland B 3594 |
| Omvang | Appartementsrecht of complex |
| Eigendomsituatie | Eigen grond |
| Indexnummer | 2 |
Beschrijving
Richtprijs: € 380.000,- k.k.
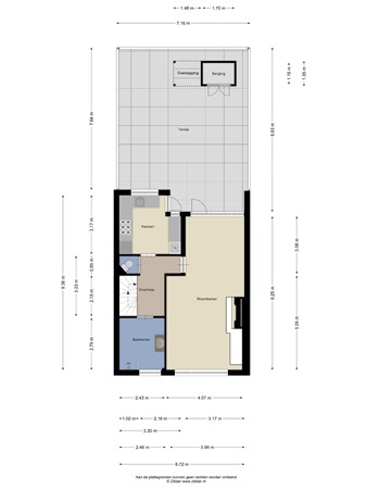
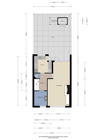
Gelegen op loopafstand van het centrum van Hoek van Holland, een instapklare 5-kamer maisonnettewoning met een gave glas-met-staal deur naar de doorzonwoonkamer, recente luxe keuken met beide een loopdeur naar een groot en zonnig gelegen dakterras van bijna 50m2 met een vrijstaande houten berging. Tevens is de moderne badkamer aan de overloop op de 1e verdieping. De 2e verdieping heeft 3 slaapkamers door de twee 2 grote dakkapelen en een (tussen)kamer voor de opstelplaats wasmachine/droger en CV-ketel.
Indeling:
Begane grond: entree, hal en trapopgang naar de 1e verdieping.
1e verdieping: overloop, toilet, ruime doorzonwoonkamer met een elektrische haard en een loopdeur naar het grote dakterras (N/W), recente en luxe keuken met diverse inbouwapparatuur en een 2e loopdeur naar het dakterras, moderne badkamer met een inloopdouche met een glaswand en wastafelmeubel, separaat toilet.
2e verdieping: overloop, 3 ruime slaapkamers door de 2 grote dakkapellen en een (tussen)kamer voor de opstelplaats wasmachine/droger en CV-ketel.
De woning is voorzien van houten en kunststof kozijnen met dubbel en HR++ glas.
Gelegen op loopafstand van het centrum van Hoek van Holland, een instapklare 5-kamer maisonnettewoning met een gave glas-met-staal deur naar de doorzonwoonkamer, recente luxe keuken met beide een loopdeur naar een groot en zonnig gelegen dakterras van bijna 50m2 met een vrijstaande houten berging. Tevens is de moderne badkamer aan de overloop op de 1e verdieping. De 2e verdieping heeft 3 slaapkamers door de twee 2 grote dakkapelen en een (tussen)kamer voor de opstelplaats wasmachine/droger en CV-ketel.
Indeling:
Begane grond: entree, hal en trapopgang naar de 1e verdieping.
1e verdieping: overloop, toilet, ruime doorzonwoonkamer met een elektrische haard en een loopdeur naar het grote dakterras (N/W), recente en luxe keuken met diverse inbouwapparatuur en een 2e loopdeur naar het dakterras, moderne badkamer met een inloopdouche met een glaswand en wastafelmeubel, separaat toilet.
2e verdieping: overloop, 3 ruime slaapkamers door de 2 grote dakkapellen en een (tussen)kamer voor de opstelplaats wasmachine/droger en CV-ketel.
De woning is voorzien van houten en kunststof kozijnen met dubbel en HR++ glas.
Bijzonderheden
Enkele kenmerken:
Kadastrale aanduiding : Hoek van Holland sectie B nummer 3594
Juridische status : Appartementsrecht
Bouwjaar : Ca. 1956
Aantal kamers : 5 kamers (incl. woonkamer)
Parkeren : Voldoende in omgeving
NEN 2580 maatvoering :
Gebruiksoppervlakte wonen 100 m²
Interne bergruimte 0 m²
Gebouw gebonden buitenruimte 56 m²
Externe bergruimte 2 m²
Inhoud van de woning excl. berging 329 m³
Gasverbruik 1.300 m³
Elektraverbruik 1.791 kWh
Dit is een indicatie volgens huidige bewoning
CV ketel : Remeha Avanta HR 2014
VvE : Bijdrage Vereniging van Eigenaren € 78,- p/m
Onderhoud binnen : Goed
Onderhoud buiten : Goed
Oplevering : In overleg, voorkeur gaat uit naar eerste helft mei 2026
Bijzonderheden : Instapklaar appartement, op slechts 10 minuten fietsen van strand, duinen en zee, met een zonnig recent vernieuwd dakterras en een recente en luxe keuken (2025).
Kadastrale aanduiding : Hoek van Holland sectie B nummer 3594
Juridische status : Appartementsrecht
Bouwjaar : Ca. 1956
Aantal kamers : 5 kamers (incl. woonkamer)
Parkeren : Voldoende in omgeving
NEN 2580 maatvoering :
Gebruiksoppervlakte wonen 100 m²
Interne bergruimte 0 m²
Gebouw gebonden buitenruimte 56 m²
Externe bergruimte 2 m²
Inhoud van de woning excl. berging 329 m³
Gasverbruik 1.300 m³
Elektraverbruik 1.791 kWh
Dit is een indicatie volgens huidige bewoning
CV ketel : Remeha Avanta HR 2014
VvE : Bijdrage Vereniging van Eigenaren € 78,- p/m
Onderhoud binnen : Goed
Onderhoud buiten : Goed
Oplevering : In overleg, voorkeur gaat uit naar eerste helft mei 2026
Bijzonderheden : Instapklaar appartement, op slechts 10 minuten fietsen van strand, duinen en zee, met een zonnig recent vernieuwd dakterras en een recente en luxe keuken (2025).