Algemeen
Richtprijs: € 380.000,- k.k.
Gelegen in het centrum van Hoek van Holland, een keurig onderhouden 3-kamer hoekappartement met een balkon en uitzicht het gezellige Brinkplein. Het appartement is gelegen op de 2e verdieping van het appartementencomplex boven de Albert Heijn. Het appartement heeft een ruime woonkamer, open keuken, badkamer en 2 slaapkamers. Tevens is er een privé berging, deze... Meer informatie
Gelegen in het centrum van Hoek van Holland, een keurig onderhouden 3-kamer hoekappartement met een balkon en uitzicht het gezellige Brinkplein. Het appartement is gelegen op de 2e verdieping van het appartementencomplex boven de Albert Heijn. Het appartement heeft een ruime woonkamer, open keuken, badkamer en 2 slaapkamers. Tevens is er een privé berging, deze... Meer informatie
-
Kenmerken
Alle kenmerken Type object Appartement, galerijflat Bouwperiode 1990 Status Verkocht onder voorbehoud Aangeboden sinds Vrijdag 7 november 2025 -
Locatie
Kenmerken
| Overdracht | |
|---|---|
| Referentienummer | 06501 |
| Vraagprijs | € 380.000,- k.k. |
| Status | Verkocht onder voorbehoud |
| Aanvaarding | In overleg |
| Aangeboden sinds | Vrijdag 7 november 2025 |
| Laatste wijziging | Dinsdag 2 december 2025 |
| Bouw | |
|---|---|
| Type object | Appartement, galerijflat |
| Woonlaag | 2e woonlaag |
| Soort bouw | Bestaande bouw |
| Bouwperiode | 1990 |
| Dakbedekking | Bitumen |
| Type dak | Platdak |
| Isolatievormen | Dubbel glas, Volledig geïsoleerd |
| Oppervlaktes en inhoud | |
|---|---|
| Woonoppervlakte | 99 m² |
| Inhoud | 326 m³ |
| Oppervlakte externe bergruimte | 4 m² |
| Oppervlakte gebouwgebonden buitenruimte | 4 m² |
| Balkonoppervlakte | 4,2 m² |
| Indeling | |
|---|---|
| Aantal bouwlagen | 1 |
| Aantal kamers | 3 (waarvan 2 slaapkamers) |
| Aantal badkamers | 1 (en 1 apart toilet) |
| Locatie | |
|---|---|
| Ligging | Dichtbij openbaar vervoer, In centrum, Nabij school |
| Energieverbruik | |
|---|---|
| Energielabel | A |
| CV ketel | |
|---|---|
| CV ketel | Intergas Kompakt HRE CW4 |
| Warmtebron | Gas |
| Bouwjaar | 2021 |
| Eigendom | Huur |
| Uitrusting | |
|---|---|
| Warm water | CV-ketel |
| Verwarmingssysteem | Centrale verwarming |
| Ventilatie methode | Mechanische ventilatie |
| Badkamervoorzieningen | Douche, Ligbad, Wastafelmeubel |
| Heeft een balkon | Ja |
| Heeft schuur/berging | Ja |
| Heeft ventilatie | Ja |
| Vereniging van Eigenaren | |
|---|---|
| Ingeschreven bij de KvK | Ja |
| Jaarlijkse vergadering | Ja |
| Periodieke bijdrage | Ja |
| Reservefonds | Ja |
| Meer jaren onderhoudsplan | Ja |
| Onderhoudsverwachting | Ja |
| Opstal verzekering | Ja |
| Kadastrale gegevens | |
|---|---|
| Kadastrale aanduiding | Hoek van Holland B 3889 |
| Omvang | Appartementsrecht of complex |
| Eigendomsituatie | Eigendom belast met erfpacht |
| Lasten | Tijdelijk, met afkoopoptie, afgekocht tot 11-10-2038 |
| Kadastrale aanduiding | Hoek van Holland B 3889 |
| Omvang | Appartementsrecht of complex |
| Eigendomsituatie | Erfpacht |
| Lasten | Tijdelijk, met afkoopoptie, afgekocht tot 11-10-2038 |
Beschrijving
Richtprijs: € 380.000,- k.k.
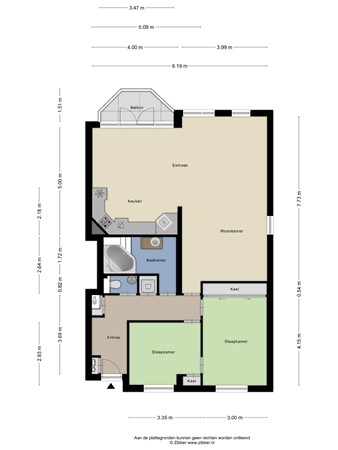
Gelegen in het centrum van Hoek van Holland, een keurig onderhouden 3-kamer hoekappartement met een balkon en uitzicht het gezellige Brinkplein. Het appartement is gelegen op de 2e verdieping van het appartementencomplex boven de Albert Heijn. Het appartement heeft een ruime woonkamer, open keuken, badkamer en 2 slaapkamers. Tevens is er een privé berging, deze is gesitueerd in de kelder van het appartementencomplex en bereikbaar is met de lift.
Indeling:
Begane grond: afgesloten portiek met brievenbussen, bellenplateau, video-intercominstallatie, centraal afvaldepot, lift en trappenhuis. Alle deuren in de algemene ruimtes van het complex zijn voorzien van automatische deuren te openen door drukknoppen.
2e verdieping: entree woning, ruime hal met meterkast, aparte kast met opstelplaats CV-ketel, aparte kast voor opstelplaats wasmachine/droger, toilet met een fonteintje, royale woonkamer met openslaande deuren naar het balkon (N/O), open keuken met enkele inbouwapparatuur, 2 ruime slaapkamers, badkamer met een bad-douchecombinatie en een wastafelmeubel.
De gehele woning is voorzien van houten kozijnen met dubbel glas.
Gelegen in het centrum van Hoek van Holland, een keurig onderhouden 3-kamer hoekappartement met een balkon en uitzicht het gezellige Brinkplein. Het appartement is gelegen op de 2e verdieping van het appartementencomplex boven de Albert Heijn. Het appartement heeft een ruime woonkamer, open keuken, badkamer en 2 slaapkamers. Tevens is er een privé berging, deze is gesitueerd in de kelder van het appartementencomplex en bereikbaar is met de lift.
Indeling:
Begane grond: afgesloten portiek met brievenbussen, bellenplateau, video-intercominstallatie, centraal afvaldepot, lift en trappenhuis. Alle deuren in de algemene ruimtes van het complex zijn voorzien van automatische deuren te openen door drukknoppen.
2e verdieping: entree woning, ruime hal met meterkast, aparte kast met opstelplaats CV-ketel, aparte kast voor opstelplaats wasmachine/droger, toilet met een fonteintje, royale woonkamer met openslaande deuren naar het balkon (N/O), open keuken met enkele inbouwapparatuur, 2 ruime slaapkamers, badkamer met een bad-douchecombinatie en een wastafelmeubel.
De gehele woning is voorzien van houten kozijnen met dubbel glas.
Bijzonderheden
Enkele kenmerken:
Kadastrale aanduiding : Hoek van Holland sectie B nummer A37 (woning) + A101 (berging)
Juridische status : Appartementsrecht, erfpacht t/m 12-10-2087,
Canon afgekocht t/m 12-10-2038
Bouwjaar : Ca. 1990
Aantal kamers : 3 kamers (incl. woonkamer)
Parkeren : Voldoende in omgeving
NEN 2580 maatvoering :
Gebruiksoppervlakte wonen 99 m²
Interne bergruimte 0 m²
Gebouw gebonden buitenruimte 4 m²
Externe bergruimte 4 m²
Inhoud van de woning excl. berging 326 m³
Gasverbruik 886 m³
Elektraverbruik 2758 kWh
Dit is een indicatie volgens huidige bewoning
CV ketel : Intergas Kompakt HRE CW4 2021 €30,95 per maand, of de ketel kan worden overgenomen voor €1.579,-. Indien gewenst, verwijdert de huidige eigenaar deze.
VvE : Bijdrage Vereniging van Eigenaren € 249,25,- p/m (incl. berging)
Onderhoud binnen : Goed
Onderhoud buiten : Goed
Oplevering : In overleg, voorkeur gaat uit naar eind december 2025, indien dit haalbaar is bij de notaris
Bijzonderheden : Uitzicht over het gezellige Brinkplein, metro op loopafstand en alle benodigde voorzieningen binnen handbereik.
Kadastrale aanduiding : Hoek van Holland sectie B nummer A37 (woning) + A101 (berging)
Juridische status : Appartementsrecht, erfpacht t/m 12-10-2087,
Canon afgekocht t/m 12-10-2038
Bouwjaar : Ca. 1990
Aantal kamers : 3 kamers (incl. woonkamer)
Parkeren : Voldoende in omgeving
NEN 2580 maatvoering :
Gebruiksoppervlakte wonen 99 m²
Interne bergruimte 0 m²
Gebouw gebonden buitenruimte 4 m²
Externe bergruimte 4 m²
Inhoud van de woning excl. berging 326 m³
Gasverbruik 886 m³
Elektraverbruik 2758 kWh
Dit is een indicatie volgens huidige bewoning
CV ketel : Intergas Kompakt HRE CW4 2021 €30,95 per maand, of de ketel kan worden overgenomen voor €1.579,-. Indien gewenst, verwijdert de huidige eigenaar deze.
VvE : Bijdrage Vereniging van Eigenaren € 249,25,- p/m (incl. berging)
Onderhoud binnen : Goed
Onderhoud buiten : Goed
Oplevering : In overleg, voorkeur gaat uit naar eind december 2025, indien dit haalbaar is bij de notaris
Bijzonderheden : Uitzicht over het gezellige Brinkplein, metro op loopafstand en alle benodigde voorzieningen binnen handbereik.