Algemeen
Gelegen in het centrum van Hoek van Holland, een instapklaar 3-kamer appartement met balkon en uitzicht over het vernieuwde Brinkplein. Het appartement is gelegen op de 3e verdieping van het appartementencomplex boven de Albert Heijn. Het appartement heeft een ruime woonkamer, moderne open keuken, luxe badkamer en 2 slaapkamers.
Tevens is er een privé berging, deze is gesitueerd in de kelder... Meer informatie
Tevens is er een privé berging, deze is gesitueerd in de kelder... Meer informatie
-
Kenmerken
Alle kenmerken Type object Appartement, galerijflat Bouwperiode 1990 Status Onder bod Aangeboden sinds Woensdag 15 april 2026 -
Locatie
Kenmerken
| Overdracht | |
|---|---|
| Referentienummer | 06540 |
| Vraagprijs | € 410.000,- k.k. |
| Status | Onder bod |
| Aanvaarding | In overleg |
| Aangeboden sinds | Woensdag 15 april 2026 |
| Laatste wijziging | Dinsdag 5 mei 2026 |
| Bouw | |
|---|---|
| Type object | Appartement, galerijflat |
| Woonlaag | 3e woonlaag |
| Soort bouw | Bestaande bouw |
| Bouwperiode | 1990 |
| Dakbedekking | Bitumen |
| Type dak | Platdak |
| Isolatievormen | Dubbel glas, Volledig geïsoleerd |
| Oppervlaktes en inhoud | |
|---|---|
| Woonoppervlakte | 99 m² |
| Inhoud | 326 m³ |
| Oppervlakte externe bergruimte | 4 m² |
| Oppervlakte gebouwgebonden buitenruimte | 4 m² |
| Indeling | |
|---|---|
| Aantal bouwlagen | 1 |
| Aantal kamers | 3 (waarvan 2 slaapkamers) |
| Aantal badkamers | 1 (en 1 apart toilet) |
| Locatie | |
|---|---|
| Ligging | Dichtbij openbaar vervoer, In centrum, Nabij school |
| Energieverbruik | |
|---|---|
| Energielabel | C |
| CV ketel | |
|---|---|
| Combiketel | Ja |
| Uitrusting | |
|---|---|
| Warm water | CV-ketel |
| Verwarmingssysteem | Centrale verwarming |
| Ventilatie methode | Mechanische ventilatie |
| Badkamervoorzieningen | Douche, Dubbele wastafel |
| Heeft een balkon | Ja |
| Heeft schuur/berging | Ja |
| Heeft ventilatie | Ja |
| Vereniging van Eigenaren | |
|---|---|
| Ingeschreven bij de KvK | Ja |
| Jaarlijkse vergadering | Ja |
| Periodieke bijdrage | Ja |
| Reservefonds | Ja |
| Meer jaren onderhoudsplan | Ja |
| Onderhoudsverwachting | Ja |
| Opstal verzekering | Ja |
| Kadastrale gegevens | |
|---|---|
| Kadastrale aanduiding | Hoek van Holland B 3889 |
| Omvang | Appartementsrecht of complex |
| Eigendomsituatie | Erfpacht |
| Indexnummer | A75 |
| Lasten | Tijdelijk, met afkoopoptie, afgekocht tot 11-10-2038 |
| Kadastrale aanduiding | Hoek van Holland B 3889 |
| Omvang | Appartementsrecht of complex |
| Eigendomsituatie | Eigendom belast met erfpacht |
| Indexnummer | A53 |
| Lasten | Tijdelijk, met afkoopoptie, afgekocht tot 11-10-2038 |
Beschrijving
Gelegen in het centrum van Hoek van Holland, een instapklaar 3-kamer appartement met balkon en uitzicht over het vernieuwde Brinkplein. Het appartement is gelegen op de 3e verdieping van het appartementencomplex boven de Albert Heijn. Het appartement heeft een ruime woonkamer, moderne open keuken, luxe badkamer en 2 slaapkamers.
Tevens is er een privé berging, deze is gesitueerd in de kelder van het appartementencomplex en bereikbaar is met de lift.
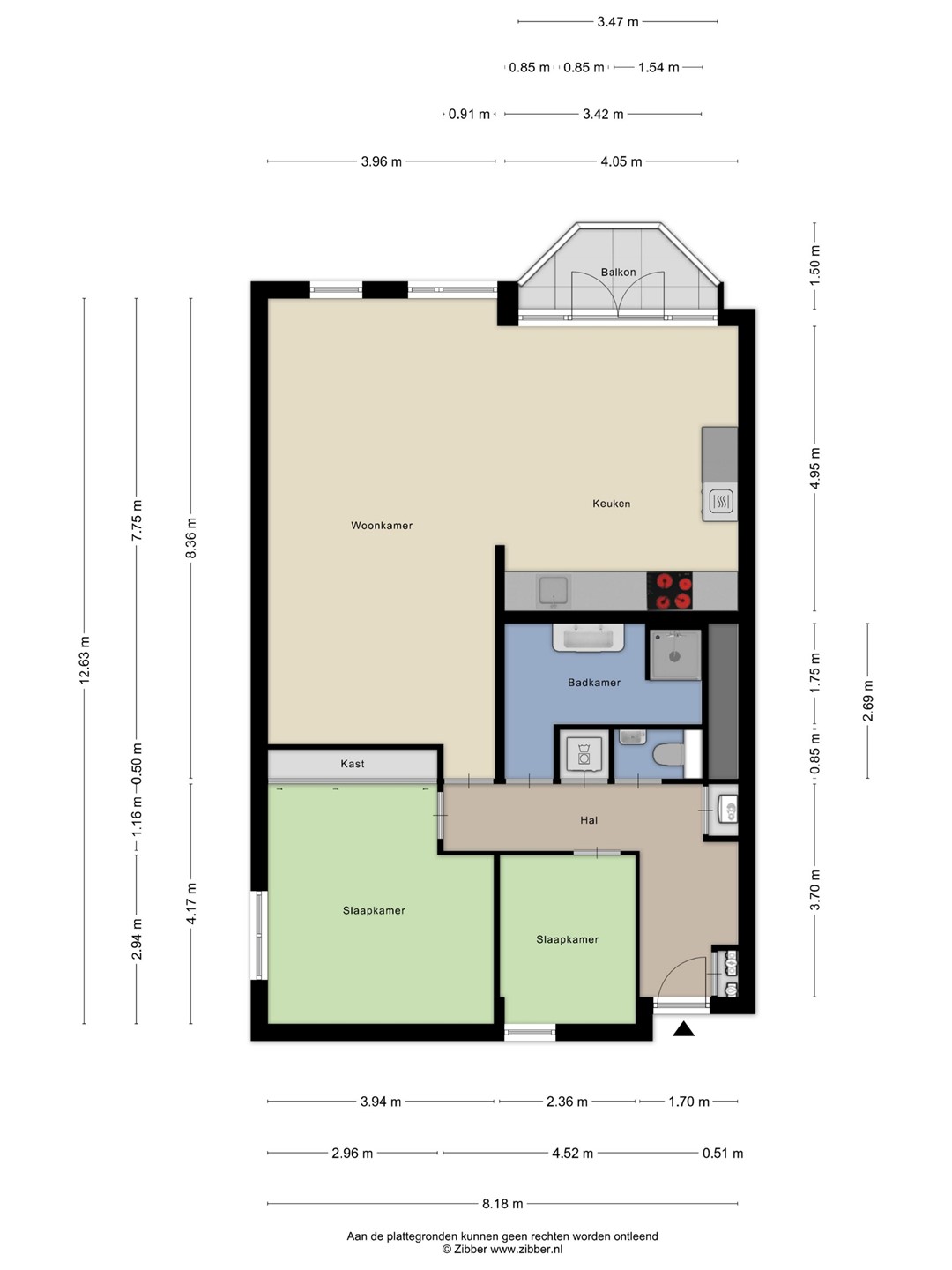
Indeling:
Begane grond: afgesloten portiek met brievenbussen, bellenplateau, video-intercominstallatie, centraal afvaldepot, lift en trappenhuis. Alle deuren in de algemene ruimtes van het complex zijn voorzien van automatische deuren te openen door drukknoppen.
3e verdieping: entree woning, ruime hal met meterkast, aparte kast met opstelplaats CV-ketel, aparte kast voor opstelplaats wasmachine/droger, modern toilet met een fonteintje, royale woonkamer met openslaande deuren naar het balkon (NO), moderne open keuken, 2 ruime slaapkamers waarvan 1 slaapkamer met vaste kastenwand, luxe badkamer met douchehoek en dubbel wastafelmeubel.
De woning is volledig geïsoleerd, voorzien van houten kozijnen met dubbel glas.
Tevens is er een privé berging, deze is gesitueerd in de kelder van het appartementencomplex en bereikbaar is met de lift.
Indeling:
Begane grond: afgesloten portiek met brievenbussen, bellenplateau, video-intercominstallatie, centraal afvaldepot, lift en trappenhuis. Alle deuren in de algemene ruimtes van het complex zijn voorzien van automatische deuren te openen door drukknoppen.
3e verdieping: entree woning, ruime hal met meterkast, aparte kast met opstelplaats CV-ketel, aparte kast voor opstelplaats wasmachine/droger, modern toilet met een fonteintje, royale woonkamer met openslaande deuren naar het balkon (NO), moderne open keuken, 2 ruime slaapkamers waarvan 1 slaapkamer met vaste kastenwand, luxe badkamer met douchehoek en dubbel wastafelmeubel.
De woning is volledig geïsoleerd, voorzien van houten kozijnen met dubbel glas.
Bijzonderheden
Kadastrale aanduiding : Hoek van Holland sectie B nummer 3889 A53 (woning) + 3889 A75 (berging)
Juridische status : Appartementsrecht, erfpacht t/m 12-10-2087,
afgekocht t/m 12-10-2038
Bouwjaar : Ca. 1990
Aantal kamers : 3 kamers (incl. woonkamer)
Parkeren : Voldoende in omgeving
NEN 2580 maatvoering :
Gebruiksoppervlakte wonen 99 m²
Interne bergruimte 0 m²
Gebouw gebonden buitenruimte 4 m²
Externe bergruimte 4 m²
Inhoud van de woning excl. berging 326 m³
Gasverbruik 230 m³
Elektraverbruik 2212 kWh
Dit is een indicatie volgens huidige bewoning
CV ketel : Remeha Avanta HR 2017
VvE : Bijdrage Vereniging van Eigenaren € 221,44,- p/m
Onderhoud binnen : Goed
Onderhoud buiten : Goed
Oplevering : In overleg, mogelijk vanaf juni 2026
Bijzonderheden : Instapklaar, moderne en luxe afwerking, uitzicht over het gezellige Brinkplein, metro op loopafstand en alle benodigde voorzieningen binnen handbereik.
Juridische status : Appartementsrecht, erfpacht t/m 12-10-2087,
afgekocht t/m 12-10-2038
Bouwjaar : Ca. 1990
Aantal kamers : 3 kamers (incl. woonkamer)
Parkeren : Voldoende in omgeving
NEN 2580 maatvoering :
Gebruiksoppervlakte wonen 99 m²
Interne bergruimte 0 m²
Gebouw gebonden buitenruimte 4 m²
Externe bergruimte 4 m²
Inhoud van de woning excl. berging 326 m³
Gasverbruik 230 m³
Elektraverbruik 2212 kWh
Dit is een indicatie volgens huidige bewoning
CV ketel : Remeha Avanta HR 2017
VvE : Bijdrage Vereniging van Eigenaren € 221,44,- p/m
Onderhoud binnen : Goed
Onderhoud buiten : Goed
Oplevering : In overleg, mogelijk vanaf juni 2026
Bijzonderheden : Instapklaar, moderne en luxe afwerking, uitzicht over het gezellige Brinkplein, metro op loopafstand en alle benodigde voorzieningen binnen handbereik.