Algemeen
Richtprijs: € 395.000,- k.k.
Een karakteristieke hoekwoning aan het eind van een hofje, midden in het centrum van Hoek van Holland, een instapklare eengezinswoning op 92m2 eigen grond met een ruime woonkamer, uitbouw en een modern open keuken. De 1e verdieping heeft 3 slaapkamers, luxe badkamer, bergvliering en een dakkapel aan de voor- en achterzijde. Tevens een beschut gelegen voortuin me... Meer informatie
Een karakteristieke hoekwoning aan het eind van een hofje, midden in het centrum van Hoek van Holland, een instapklare eengezinswoning op 92m2 eigen grond met een ruime woonkamer, uitbouw en een modern open keuken. De 1e verdieping heeft 3 slaapkamers, luxe badkamer, bergvliering en een dakkapel aan de voor- en achterzijde. Tevens een beschut gelegen voortuin me... Meer informatie
-
Kenmerken
Alle kenmerken Type object Woonhuis, eengezinswoning, hoekwoning Bouwperiode 1904 Status Nieuw in verkoop Aangeboden sinds Woensdag 14 januari 2026 -
Locatie
Kenmerken
| Overdracht | |
|---|---|
| Referentienummer | 06518 |
| Vraagprijs | € 395.000,- k.k. |
| Status | Nieuw in verkoop |
| Aanvaarding | In overleg |
| Aangeboden sinds | Woensdag 14 januari 2026 |
| Bouw | |
|---|---|
| Type object | Woonhuis, eengezinswoning, hoekwoning |
| Soort bouw | Bestaande bouw |
| Bouwperiode | 1904 |
| Dakbedekking | Dakpannen |
| Type dak | Zadeldak |
| Isolatievormen | Gedeeltelijk dubbel glas, HR-glas |
| Oppervlaktes en inhoud | |
|---|---|
| Perceeloppervlakte | 92 m² |
| Woonoppervlakte | 107 m² |
| Inhoud | 377 m³ |
| Oppervlakte externe bergruimte | 4 m² |
| Indeling | |
|---|---|
| Aantal bouwlagen | 3 |
| Aantal kamers | 5 (waarvan 3 slaapkamers) |
| Aantal badkamers | 1 (en 1 apart toilet) |
| Locatie | |
|---|---|
| Ligging | Dichtbij openbaar vervoer, In centrum, In woonwijk |
| Tuin | |
|---|---|
| Type | Voortuin |
| Oriëntering | Noord-oost |
| Staat | Goed onderhouden |
| CV ketel | |
|---|---|
| CV ketel | Remeha Avanta HR |
| Warmtebron | Gas |
| Bouwjaar | 2020 |
| Combiketel | Ja |
| Eigendom | Eigendom |
| Uitrusting | |
|---|---|
| Warm water | CV-ketel |
| Verwarmingssysteem | Centrale verwarming |
| Ventilatie methode | Mechanische ventilatie |
| Keukenvoorzieningen | Inbouwapparatuur |
| Badkamervoorzieningen | Inloopdouche, Toilet, Wastafelmeubel |
| Heeft airco | Ja |
| Tuin aanwezig | Ja |
| Heeft schuur/berging | Ja |
| Heeft zonnepanelen | Ja |
| Heeft ventilatie | Ja |
| Kadastrale gegevens | |
|---|---|
| Kadastrale aanduiding | Hoek van Holland B 3428 |
| Perceeloppervlakte | 92 m² |
| Omvang | Geheel perceel |
| Eigendomsituatie | Eigen grond |
Beschrijving
Richtprijs: € 395.000,- k.k.
Een karakteristieke hoekwoning aan het eind van een hofje, midden in het centrum van Hoek van Holland, een instapklare eengezinswoning op 92m2 eigen grond met een ruime woonkamer, uitbouw en een modern open keuken. De 1e verdieping heeft 3 slaapkamers, luxe badkamer, bergvliering en een dakkapel aan de voor- en achterzijde. Tevens een beschut gelegen voortuin met een vrijstaande kunststof berging.
Indeling:
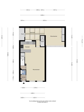
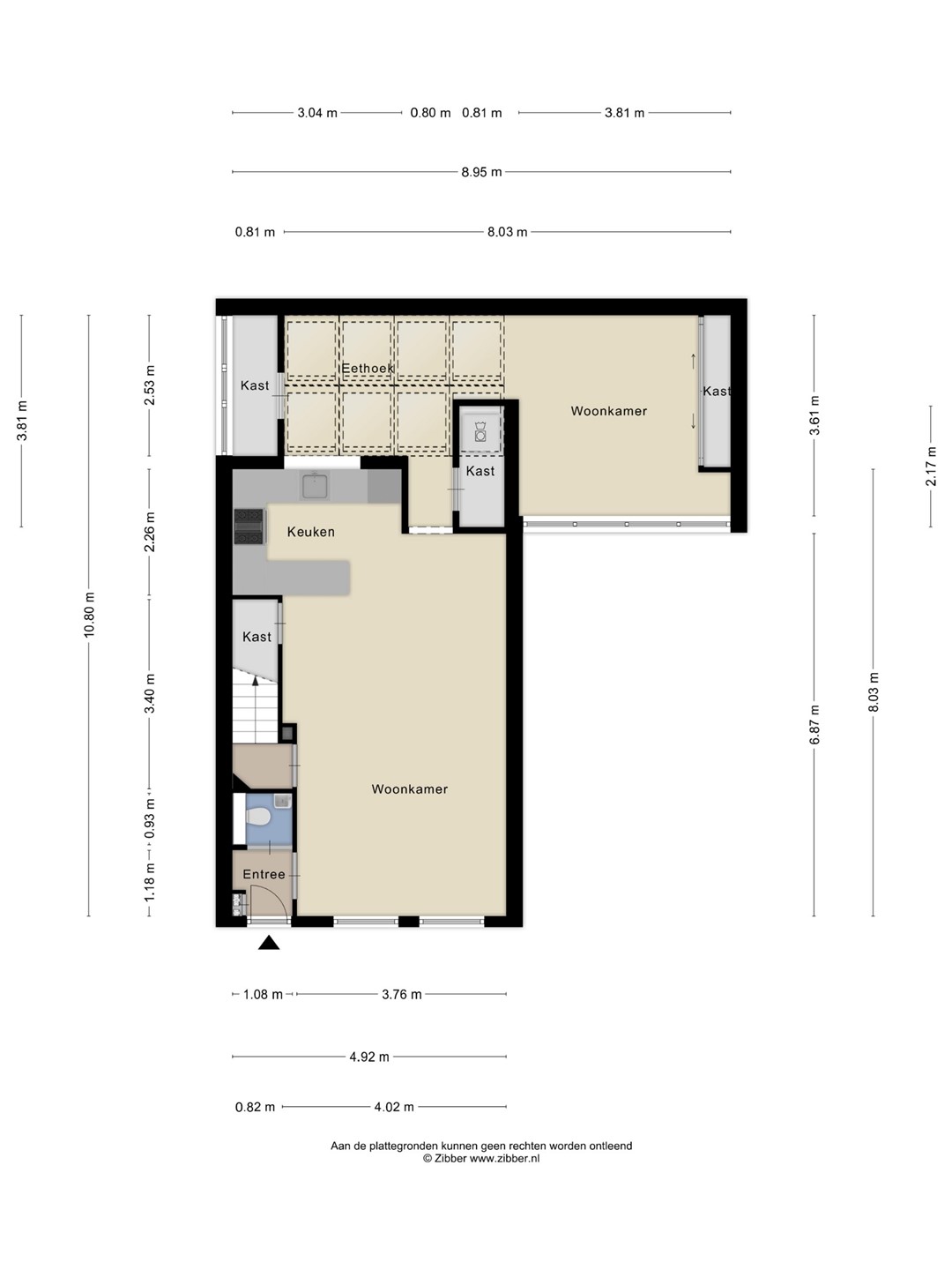
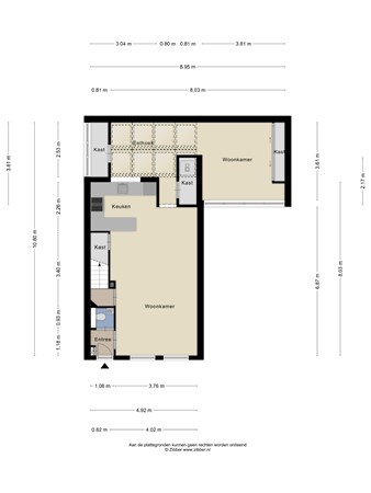
Begane grond: entree, hal, toilet met fonteintje, ruime woonkamer, open keuken met diverse inbouwapparatuur, ruimte voor wasmachine en droger, serre/uitbouw aan de achter en zijkant van de woning.
1e verdieping: overloop met toegang naar bergvliering en CV-ketel, 3 slaapkamers en een luxe badkamer met een wastafelmeubel, 2e toilet en inloopdouche.
De woning is voorzien van houten kozijnen met dubbel en HR++ glas. Tevens zijn er recente 9 zonnepanelen.
Een karakteristieke hoekwoning aan het eind van een hofje, midden in het centrum van Hoek van Holland, een instapklare eengezinswoning op 92m2 eigen grond met een ruime woonkamer, uitbouw en een modern open keuken. De 1e verdieping heeft 3 slaapkamers, luxe badkamer, bergvliering en een dakkapel aan de voor- en achterzijde. Tevens een beschut gelegen voortuin met een vrijstaande kunststof berging.
Indeling:
Begane grond: entree, hal, toilet met fonteintje, ruime woonkamer, open keuken met diverse inbouwapparatuur, ruimte voor wasmachine en droger, serre/uitbouw aan de achter en zijkant van de woning.
1e verdieping: overloop met toegang naar bergvliering en CV-ketel, 3 slaapkamers en een luxe badkamer met een wastafelmeubel, 2e toilet en inloopdouche.
De woning is voorzien van houten kozijnen met dubbel en HR++ glas. Tevens zijn er recente 9 zonnepanelen.
Bijzonderheden
Enkele kenmerken:
Kadastrale aanduiding : Hoek van Holland sectie B nummer 3428
Grootte perceel: : 92 m²
Juridische status : Eigen grond
Bouwjaar : Ca. 1904
Aantal kamers : 4 kamers (incl. woonkamer)
Parkeren : Voldoende in omgeving
NEN 2580 maatvoering :
Gebruiksoppervlakte wonen 107 m²
Interne bergruimte 0 m²
Gebouw gebonden buitenruimte 0 m²
Externe bergruimte 4 m²
Inhoud van de woning excl. berging 377 m³
Nieuw energielabel volgt
Gasverbruik 786 m³
Elektraverbruik 2117 kWh
Opwek zonnepanelen 2336 kWh
Gesaldeerd verbruik per jaar -219 kWh
Dit is een indicatie volgens huidige bewoning
CV ketel : Remeha HR 2020
Onderhoud binnen : Goed
Onderhoud buiten : Goed
Oplevering : In overleg, voorkeur gaat uit naar begin april 2026
Bijzonderheden : Instapklaar en eigen grond. De buitenzijde is in 2025 geschilderd. Voorzien van 9 zonnepanelen, een in 2022 vernieuwde dakkapel aan de achterzijde en een in 2022 vernieuwde groepenkast.
Kadastrale aanduiding : Hoek van Holland sectie B nummer 3428
Grootte perceel: : 92 m²
Juridische status : Eigen grond
Bouwjaar : Ca. 1904
Aantal kamers : 4 kamers (incl. woonkamer)
Parkeren : Voldoende in omgeving
NEN 2580 maatvoering :
Gebruiksoppervlakte wonen 107 m²
Interne bergruimte 0 m²
Gebouw gebonden buitenruimte 0 m²
Externe bergruimte 4 m²
Inhoud van de woning excl. berging 377 m³
Nieuw energielabel volgt
Gasverbruik 786 m³
Elektraverbruik 2117 kWh
Opwek zonnepanelen 2336 kWh
Gesaldeerd verbruik per jaar -219 kWh
Dit is een indicatie volgens huidige bewoning
CV ketel : Remeha HR 2020
Onderhoud binnen : Goed
Onderhoud buiten : Goed
Oplevering : In overleg, voorkeur gaat uit naar begin april 2026
Bijzonderheden : Instapklaar en eigen grond. De buitenzijde is in 2025 geschilderd. Voorzien van 9 zonnepanelen, een in 2022 vernieuwde dakkapel aan de achterzijde en een in 2022 vernieuwde groepenkast.